ออกแบบบ้านไตล์คุณ ลูกค้าสามารถเลือกหรือมีส่วนร่วมในการออกแบบบ้านของคุณกับเรา พรสวรรค์ทีมงาน การสร้าง จำกัด
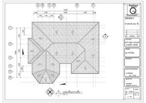
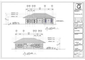
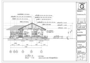
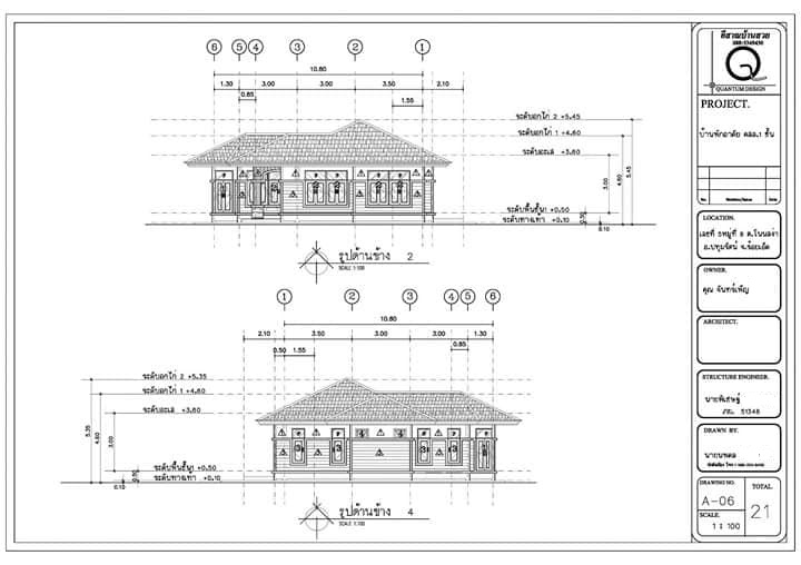
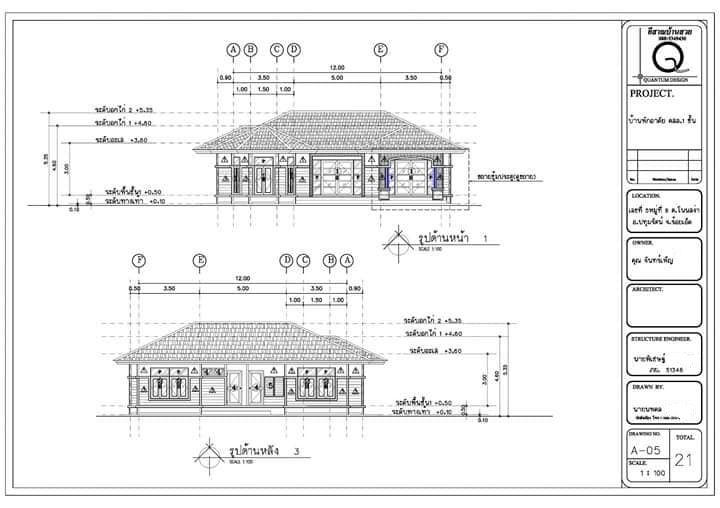
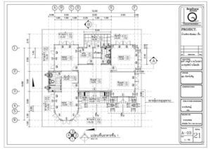
- แบบบ้านพักอาศัย 1 ชั้น
- พื้นที่ใช้สอยโดยประมาณ 72 ตร.ม.
- 3 ห้องนอน
- 2 ห้องน้ำ
- 1 ห้องครัว
- 1 ห้องโถงใหญ่
ขอบคุณลูกค้าและครอบครัวที่ไว้วางใจทางทีมเรา ครบจบทีเดียวในเรื่องบ้าน และ การรีโนเวททุกสภาพงาน
รับออกแบบบ้าน ออกแบบบ้าน รับเขียนแบบบ้าน แบบอาคารพาณิชย์ แบบบ้านชั้นเดียวรีสอร์ท แบบบ้านสองชั้นทันสมัย แบบโรงแรม แบบคอนโด แบบคฤหาสน์ แบบหอพัก อพาร์ทเม้นท์ แบบบ้าน ชั้นเดียว แบบบ้าน ชั้นครึ่ง แบบบ้าน สองชั้น แบบบ้าน ราคาถูก แบบบ้าน สวย แบบบ้าน โมเดิร์น แบบบ้าน ไม่เกิน 1 ล้าน ออกแบบบ้านครบชุดแบบ 3D บริษัท ออกแบบ บ้าน ออกแบบ บ้าน บริการ ออกแบบ ตึก อาคาร บริการ ออกแบบ คอนโด อพาร์ทเม้น รับ ออก แบบ บ้าน ชั้น เดียว รับ ออก แบบ บ้าน สอง ชั้น บริษัท รับ ออกแบบ บ้าน รับเหมาก่อสร้าง บริษัท รับเหมา ก่อสร้าง ออกแบบ โรงแรม รีสอร์ท รับ ออก แบบ และ สร้าง บ้าน งาน ออกแบบ บ้าน บริการ ออกแบบ บ้าน ออกแบบ บ้าน 2 ชั้น แบบ บ้าน ราคา ถูก แปลนบ้าน แปลนบ้านราคาถูก
รับออกแบบบ้าน ออกแบบบ้าน รับเขียนแบบบ้าน แบบอาคารพาณิชย์ แบบบ้านชั้นเดียวรีสอร์ท แบบบ้านสองชั้นทันสมัย แบบโรงแรม แบบคอนโด แบบคฤหาสน์ แบบหอพัก อพาร์ทเม้นท์ แบบบ้าน ชั้นเดียว แบบบ้าน ชั้นครึ่ง แบบบ้าน สองชั้น แบบบ้าน ราคาถูก แบบบ้าน สวย แบบบ้าน โมเดิร์น แบบบ้าน ไม่เกิน 1 ล้าน ออกแบบบ้านครบชุดแบบ 3D บริษัท ออกแบบ บ้าน ออกแบบ บ้าน บริการ ออกแบบ ตึก อาคาร บริการ ออกแบบ คอนโด อพาร์ทเม้น รับ ออก แบบ บ้าน ชั้น เดียว รับ ออก แบบ บ้าน สอง ชั้น บริษัท รับ ออกแบบ บ้าน รับเหมาก่อสร้าง บริษัท รับเหมา ก่อสร้าง ออกแบบ โรงแรม รีสอร์ท รับ ออก แบบ และ สร้าง บ้าน งาน ออกแบบ บ้าน บริการ ออกแบบ บ้าน ออกแบบ บ้าน 2 ชั้น แบบ บ้าน ราคา ถูก แปลนบ้าน แปลนบ้านราคาถูก
ติดต่อ คุณเกมส์ 085-5179722
Line : gameitp









